北京四合院出租出售专营 siheyuan.info

产品详情

金舆东华244-509平

产品详情

微信图片_20220103222727.jpg

金舆东华基础信息
开发商:北京昱置房地产有限公司
地址:北京市东城区金宝街90号
产权年限:70年
装修情况:精装修、部分毛坯
总户数:107+7套
绿化率:30%
车位配比:1:1.1 (产权车位)80万/个
物业公司:高力国际
物业费:18元/m2·月
户型面积:244 - 509m2
得房率:72%
层高:3.5米
交付时间:2022年4月30日

主打户型:
二居至三居:244/268/325㎡
三居至四居:423/443㎡/412㎡(需要2个购房资格)
顶复:260/263/453/449/509㎡
特殊户型:
一居:151㎡(仅3楼一套)
184㎡(仅3楼一套)
217㎡(仅10楼一套)
282㎡(仅17楼一套)
组合户型:600-2600㎡微信图片_20220103223208.jpg
   主打户型鉴赏

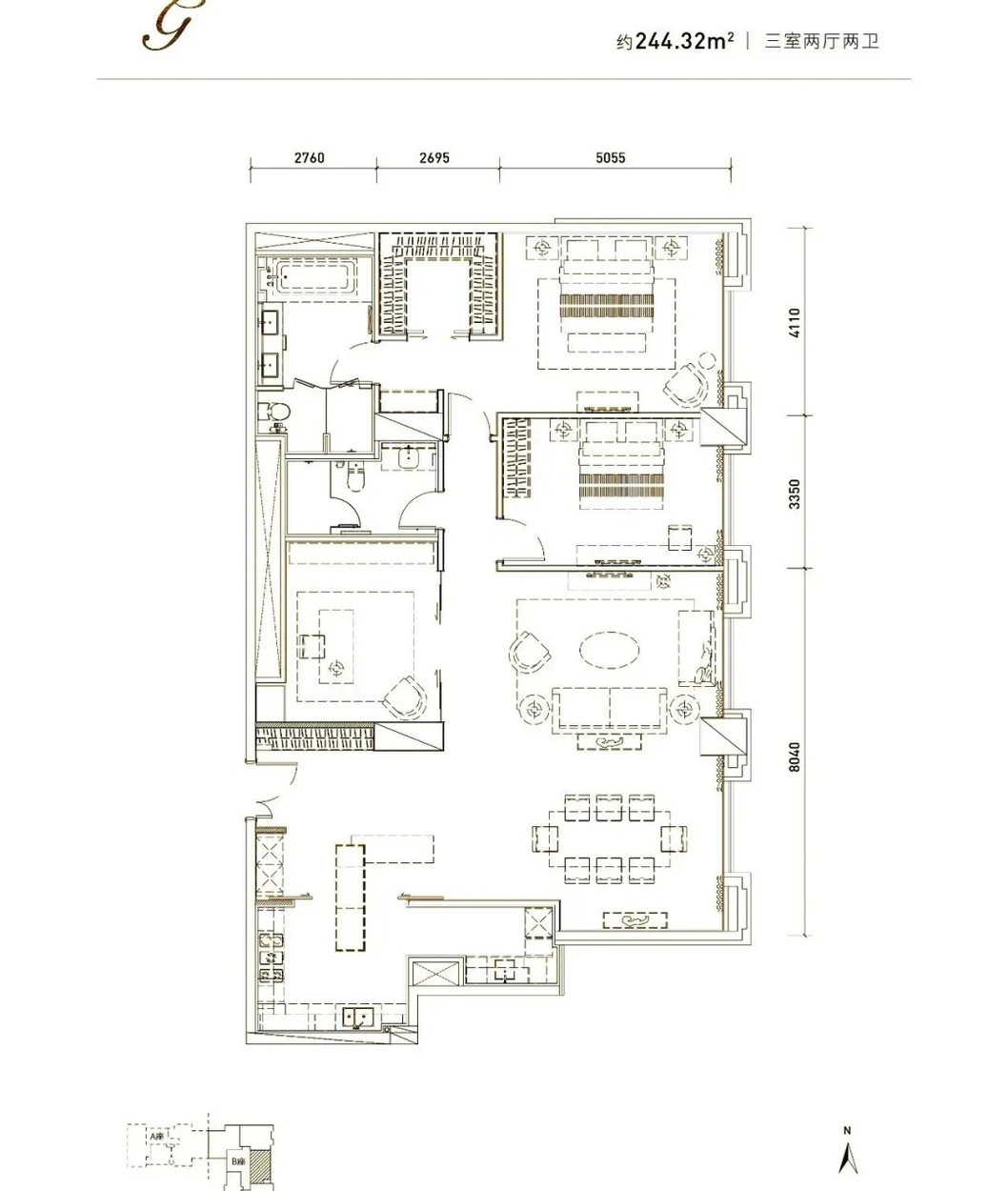
244㎡ 2+1室2厅2卫

微信图片_20220103224140.jpg【介绍】纯朝东看CBD全景户型,视频是244㎡由意大利设计师设计宫廷风样板房,给到业主归家的仪式感。样板间设计与交付样板不同,实际交付以项目现场户型为准

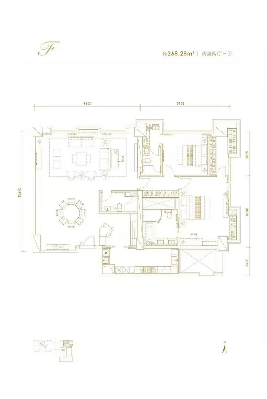
268㎡ 2居3厅3卫 微信图片_20220103224244.jpg【介绍】268㎡是东北朝向,主卧和厨房面朝东(11楼以上可看CBD景观,11楼以下被金宝汇挡住看不到CBD,但性价比高)。其它面向金宝街朝北向,视野看史家胡同(与历史对话)和金保大厦5A级写字楼(以后出租率和租金较高)。层高3.5米、客厅大面宽9米、大落地窗通风采光性极好。实际格局以交付为准

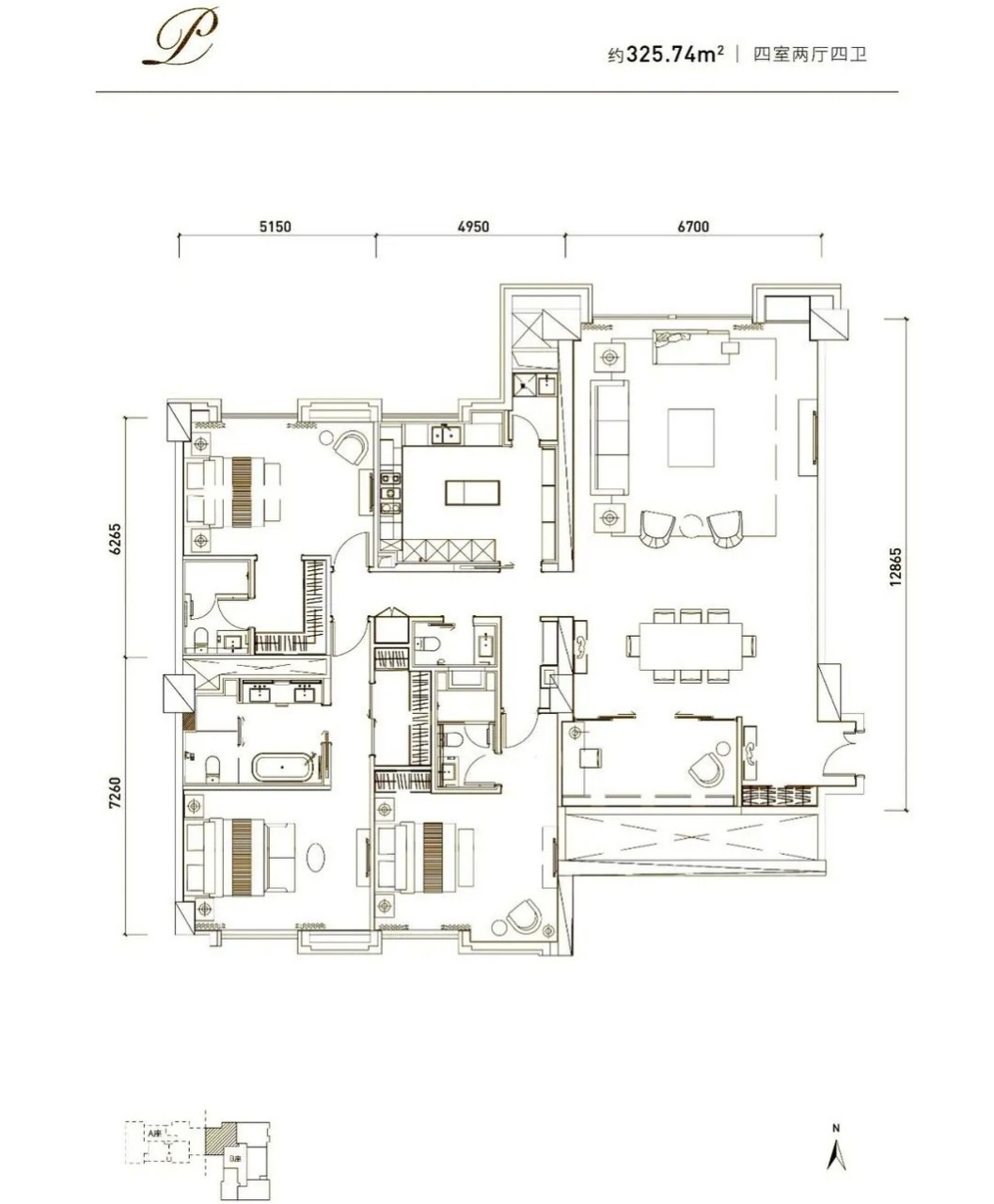
325㎡ 3居2厅4卫 微信图片_20220103224336.jpg【介绍】325㎡非常方正,南北通透户型。全套房设计,2居朝南1居朝北。朝南面向长安街方向,视野开阔无遮挡。这套是香港梁志天团队设计的样板房,实际格局以交付户型为准


423㎡ 3居3厅4卫
微信图片_20220103224424.jpg【介绍】423㎡是由282㎡和141㎡户型打通而组合,需要2个房本,目前可以选择毛坯从新设计户型。南北西朝向。

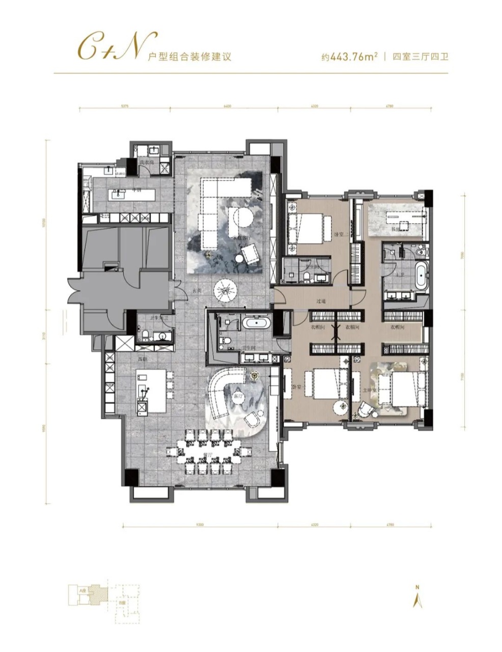
443㎡ 4居3厅4卫 微信图片_20220103224523.jpg【介绍】443㎡户型是由292㎡和151㎡户型打通而组合,需要2个房本,目前可以选择毛坯从新设计户型。南北朝向,户型非常方正。

509㎡ 2居3厅3卫

【介绍】顶楼复式509㎡样板房出售,所见所得,领包入住。
另其他面积复式可选毛坯交付,260-476平微信图片_20220103224611.jpg微信图片_20220103224615.jpg 特殊户型鉴赏

     151㎡ 1居2厅2卫
151㎡户型仅剩一套3楼,精装交付。微信图片_20220103224854.jpg184户型,户型图仅供参考,毛坯交付,可以改两居

微信图片_20220103224933.jpg
217㎡   户型图仅供参考,毛坯交付微信图片_20220103225149.jpg

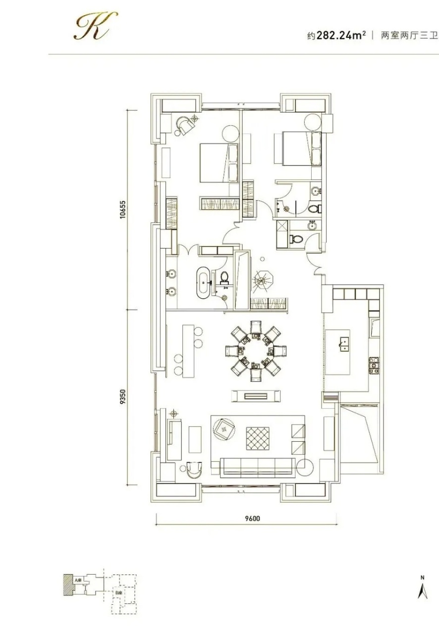
282㎡ 2居2厅3卫   精装交付微信图片_20220103225311.jpg【介绍】282㎡仅有一套17楼样板房,南北西户型微信图片_20220103225308.jpg

登录
登录
我的资料
回到顶部