北京四合院出租出售专营 siheyuan.info

产品详情

后海千平豪装四合院29.2万/月

片区 : 后海景山南北池子
 预约
产品详情


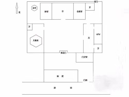
后海正座二进四合院出租

占地:1070㎡

建筑:750㎡

租金:350万/年,押三年付

房况:精装修,地暖中央空调都有。

看房:提前一天约

后海核心区域,紧邻恭王府后花园,正座跨胡同四合院,南北两个门各自对应不同的胡同,干净整洁,步行3分钟见海。


登录
登录
我的资料
回到顶部